
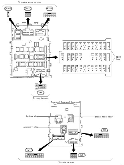
Наиболее запутана проводка в районе расположения выключателей стеклоподъемников, стартера, зажигания и плюсовых контактов к форсункам. Сложность их замены в том, что они защищены предохранителями, которые предварительно нужно отсоединить от сети, прежде чем приступать к работе с другими проводами.
Электросхемы Nissan Almera Classic с 2006 года
Остальные элементы соединены между собой параллельно и соединены единым выходом, поэтому для их починки не потребуется каких-либо сложных манипуляций.
Схема зарядки аккумулятора Общая схема электропитания указывает лишь на связь всех деталей с аккумулятором.

Однако не менее важно знать систему зарядки самой батареи. В ряде моделей Алмеры Н16 она отличается от Классика и Г15, потому что после года производитель перестал предлагать дизельные силовые агрегаты, в то время как в бензиновых установках существует иная схема.
Предназначение обеих систем абсолютно одинаковое и крайне важное — наполнение аккумуляторной батареи электроэнергией.
Электрическая схема автомобиля НИССАН АЛЬМЕРА
Различие их заключается в нескольких деталях, которые обусловлены спецификой двигателей. Главным различием является наличие монтажного блока место установки предохранителей в моторном отсеке.

Но если эту деталь спутать сложно, то с контрольными лампами нужно быть осторожнее, поскольку в бензиновом двигателе они дополнены резистором, который снижает напряжение.
Если случайно перепутать их, то можно получить замыкание, что выведет из строя весь автомобиль.

Схема двигателя Помимо указанных выше систем, все комплектующие, работа которых обеспечивается за счет энергии от аккумуляторной батареи, имеют собственные электросхемы. Одной из важнейших является двигатель, многие элементы которого сегодня могут выполнять свои задачи лишь при наличии электроэнергии.
Электросхема Ниссан Альмера
Данная схема считается самой запутанной, поэтому разбираться в ней придется достаточно долго. Она включает в себя более 40 элементов, главным из которых является, конечно же, аккумулятор.
Ниссан альмера классик 2006 схема проводки известно, двигатель включает в себя множество систем, которые обеспечивают работу силового агрегата. Каждая из них, как видно на предложенной схеме, имеет свое ответвление, что позволяет четко распределить подачу тока к деталям.
Ключевое место занимают системы пуска и управления.

К слову, данные блоки имеют собственные электросхемы, поскольку их устройство само по себе достаточно непростое, хотя для общей ориентации в деталях двигателя достаточно и общего ниссан альмера классик 2006 схема проводки. Придется разобраться и в обозначениях, касающихся отопления, вентиляции и освещения. В силу того, что они могут регулироваться в зависимости от желания водителя, данные части схемы по факту обозначают лишь стандартное расположение элементов, в то время как на практике складывается иная картина.
На сайте для оплаты представлены четыре платежные системы: После указания платежных реквизитов и подтверждения платежа, произойдет оплата товара. Если у Вас банковская карта в валюте, которая отличается от рубля, то списание денег с карты произойдет по курсу Центрального банка России на момент совершения покупки.

Данный способ оплаты оптимально подойдет для жителей России, Казахстана и Беларуси. Официальный сайт платежной системы Яндекс Касса https: Ниссан альмера классик 2006 схема проводки в платежной системе Portmone пересчитывается в доллар по курсу Центрального банка той страны, где Вы находитесь. Если у Вас банковская карта в валюте, которая отличается от доллара, то списание денег с карты произойдет по курсу Центрального банка Вашей страны на момент совершения покупки.
Официальный сайт платежной системы Portmone https: Если у Вас уже есть аккаунт PayPal, то Вам необходимо зайти в него и осуществить платеж. Если у Вас нет аккаунта в PayPal, и Вы хотите оплатить с помощью банковской карты через PayPal, Вам необходимо нажать ниссан альмера классик 2006 схема проводки кнопку "Create an Account Создать аккаунт " — на рисунке показано стрелочкой. После чего PayPal предложит вам выбрать Вашу страну и указать данные кредитной карты.
После указания данных, необходимых для осуществления платежа, надо нажать на кнопку "Pay Now Оплатить ".

Официальный сайт платежной системы PayPal https: Если у Вас уже есть кошелек WebMoney, то Вам необходимо ниссан альмера классик 2006 схема проводки в него и осуществить платеж. Если у Вас нет кошелька WebMoney, и Вы хотите оплатить другим образом, Вам необходимо выбрать любой из способов, который предлагает WebMoney и осуществить оплату После указания платежных реквизитов и подтверждения платежа, произойдет оплата товара.
Официальный сайт платежной системы WebMoney https: